ユニットハウス

ユニットハウス

製品の特徴

CT-Jは、主にレンタルでご利用いただくことを対象に設計されているため、建設現場事務所やイベント施設、住宅販売事務所、建て替え中の仮店舗、仮設校舎など、使用期間が決まっている方に最適な製品です。 建築確認申請も取得可能で、施工の早さと頑丈な構造体が特長。さらに、施工時の安全性と利用時の快適性に徹底的にこだわりました。

豊富なオプション

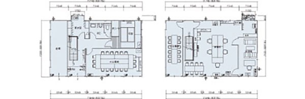
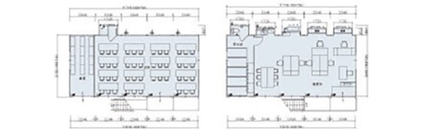
室内レイアウト例

1F:詰所、2F:事務所

CT-54J 5連棟2階建て 総面積120.43㎡(39.45坪)

1F:会議室+倉庫、2F:事務所

CT-72J 5連棟2階建て 総面積165.37㎡(50.02坪)

関連商品

海外拠点
``