超断熱材の使用で空調効果を高め、冷暖房費を大幅に低減し省エネルギー政策にマッチします。
完全密閉、アルミサッシュ使用のため、外部の騒音に影響されない静かな環境をつくります。
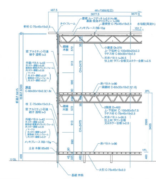
天井裏にも断熱層を設け、居住性をアップ。また、天井にはカラー合板、壁面は美しいレザー地仕上げで落ち着いた雰囲気を作り出します。
各教育委員会の基準に合格したスクールタイプも用意しています。これは従来の仮設教室が持っていた多くの問題点を改善したものとして、各地方自治体、PTAから期待を寄せられています。
耐用年数やその他の問題で、これまでのプレハブ製品は長期リースが難しいとされてきました。組立てハウスは、きわめて耐久性に富む部材を使用し、この問題を解消しました。
長期リースにも適しています。
一般事務所、現場事務所、学校校舎、店舗、社内食堂、幼稚園、保育園、寮、集会所、応急住宅、その他本建築としても多目的にご利用ください。
| タイプ | 符号 | 階数 | 軒高(m) | 楽間寸法(m) | 桁行寸法(m) |
|---|---|---|---|---|---|
| オフィス事務所タイプ | GA GBⅠ GBⅡ GBⅢ |
平度 2階建 2階建 2階建 |
3,605 6,242 6,512 6,775 |
各タイプ1,800を基本とし、 3,600(2間)から9,000(5間)但し900ピッチ | 各タイプ共1,800を単位として増減自由 |
| スクール学校タイプ | SA SB |
平度 2階建 |
4,245 7,757 |
| タイプ | オフィス事務所タイプ | スクール学校タイプ |
|---|---|---|
| 符号 | GA GBⅠ GBⅡ GBⅢ |
平度 2階建 2階建 2階建 |
| 階数 | SA SB |
平度 2階建 |
| 軒高(m) | 3,605 6,242 6,512 6,775 |
4,245 7,757 |
| 楽間寸法(m) | 各タイプ1,800を基本とし、 3,600(2間)から9,000(5間)但し900ピッチ | |
| 桁行寸法(m) | 各タイプ共1,800を単位として増減自由 | |
| 構造・軸 | プレース構造(裏側・桁側共) |
|---|---|
| 基礎 | 木杭、土台、木杭、土台 □=100×100または鋼製 |
| 床組 | 大引 □=75×75 @1800 束、木杭、末口 75φ ?=900 |
| 床 | 床パネル コンパネ ア 12m/m 根太90×90/3 1階(一本棧)@300 2階(二本棧)@300 |
| 屋根 | 長尺カラー鉄板 折板葺 ア 0.5m/m |
| 外壁 | 外壁パンネル イソバンド ア 22m/m 外側:カラー鋼板 内部:硬質ウレタン 内側:塩ビ鋼板 |
| 建具 | 出入口:アルミ腰高引違戸 窓:アルミサッシュ引違窓 |
| 天井 | 天井高 スクールタイプ3,000m/m オフィスタイプ2,400m/m 天井パネル カラー合板 ア 2.5m/m 最上階のみ断熱材 グラスウール ア 25m/m敷込 |




